Unternehmen

Kontakt

Aktuelle Bauprojekte

Neubau

Aktuelle Bauprojekte

Referenzen

Bauen und Sanieren

Neubau von vier Eigentumswohnungen

in Petershagen, Ortschaft Eldagsen

Neubau von vier modernen Eigentumswohnungen in ruhiger Lage. Hochwertige Ausstattung mit Wärmepumpensystem entsprechend der neuesten energetischen Vorschriften. Fassadengestaltung in hellem Farbton, Absetzung der Fenster in anthrazit und mit Tondachziegeln in anthrazit. Je Wohnung mit Terrasse oder Balkon.

 

Der Baubeginn erfolgt

im 1. Quartal 2020

Schlüsselfertige Erstellung  einschließlich Pflasterung und Stellplätze

 

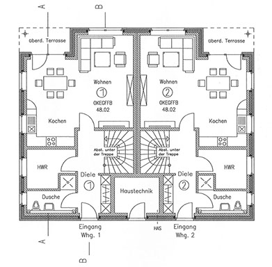
Neubau von 2 Gebäuden mit jeweils 2 Wohnungen

"Rosengarten" in Petershagen

Neubau eines Mehrfamilienhauses

"Auf der Königlichen Breede" in Petershagen

Neubau eines Mehrfamilienhauses mit 12 Wohneinheiten in der Bückeburger Innenstadt am Obertorwall

Moderne Wohnanlage mit 4 Wohnungen in hochwertiger Ausstattung. Die Beheizung erfolgt über eine Luft-Wasser-Wärmepumpe und Fußbodenheizung in den Wohnungen. Im Erdgeschoss werden sich zwei Wohnungen in der Größe von 78 m2 und eine Wohnung von 67 m2 befinden.

Alle vier Wohnungen werden einen eigenen Hauseingang und separate Abstellräume haben.

 

Schlüsselfertige Erstellung von der Grundsteinlegung bis zur Gartengestaltung.

 

Wohnungsgrößen zwischen  60 und 140 m2 mit Abstellraum, Balkon oder Terrasse in gehobener Ausstattung. Die beiden Wohnungen im Dachgeschoss verfügen über je eine großzügige Dachterrasse.

Die Fertigstellung ist bis Ende 2018 geplant.

Zwei Häuser in gleicher Bauform mit jeweils 2 Wohnungen, die gemietet werden können. Es handelt sich um Massivbauweise mit Beheizung über Luft-Wasser-Wärmepumpe und Fußbodenheizung. Zwischen den beiden Häusern befindet sich die Carpotanlage.

Auch hier bauen wir schlüsselfertig – von der Grundsteinlegung bis zur Gartengestaltung.

 

 

 

Fertiggestellt!

Komfortables Wohnen in Top-Lage –

Exklusive Wohnungen

mit Weserblick in Petershagen

Neubau von 2 Häusern mit jeweils 6 Wohnungen. Die Wohnfläche der hell und großzügig geschnittenen Wohnungen liegt zwischen 115 und 120 m2, die Penthousewohnungen sind ab 85 m2 groß. Die Ausstattung erfolgt barrierefrei mit Aufzuganlage und komfortablen Extras wie Fußbodenheizung. Die Balkone und Terrassen sind groß und nach Süden ausgerichtet. Die Häuser werden mit Carpots und separaten Abstellräumen ausgestattet.

 

Bezugsfertig voraussichtlich im Juni 2019

 

 

 

Baubeginn ist erfolgt!

Aktuelle Bauprojekte

Neubau

Referenzen

Bauen und Sanieren

Referenzen

 

Impressum

© Gräper Bau GmbH

Startseite

Bauen

Aktuelle Bauprojekte

Neubau

Bauen und Sanieren